Construire une maison avec La Construction Lyonnaise, c’est avant tout établir un projet avec notre architecte.
Etablir les plans : l’avant-projet
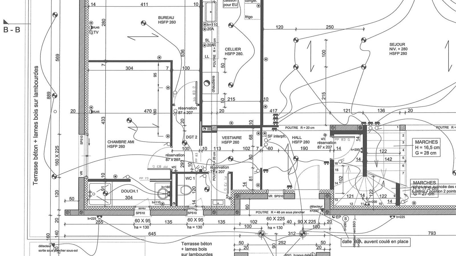
Avant de poser la première pierre de votre maison, il va falloir l’imaginer, la dessiner !
En effet, lors de votre premier entretien, notre architecte vous questionnera ce qui lui permettra de composer et créer les volumes et l’organisation des pièces selon vos envies, besoins et idées, le tout avec l’expérience et le conseil technique de son métier.
Il saura vous guider et provoquer votre imagination afin que celle-ci devienne réalité et qu’elle donne naissance à votre future maison, une maison sur-mesure qui vous conviendra en tout point.
Notre architecte vous présentera plusieurs avant-projets, lesquels susciteront des discussions et échanges. Ceux-ci lui permettront de valider et recentrer son dessin en l’affinant selon vos orientations. Votre future maison est en train de naître ; ses plans se précisent.


Et votre projet prend vie
Après plusieurs allers-retours pour façonner votre maison, les plans seront validés. Place ensuite à l’aspect administratif et financier du dossier. Mais avant d’en arriver là, laissez-vous séduire par les projets en cours de La Construction Lyonnaise. Et qui sait, le vôtre en fera peut-être partie bientôt !


Après les plans, vient la construction. Prenez vous à rêver en visitant nos réalisations.