Commune de 4000 habitants au sud du Département du Rhône, Communay se situe à mi-chemin entre Lyon et Vienne. Dotée d’un caractère rural et villageois, le paysage alterne entre plaines et collines. Enfin, l’environnement naturel est préservé grâce à un développement urbain maîtrisé.
En Avant-Première
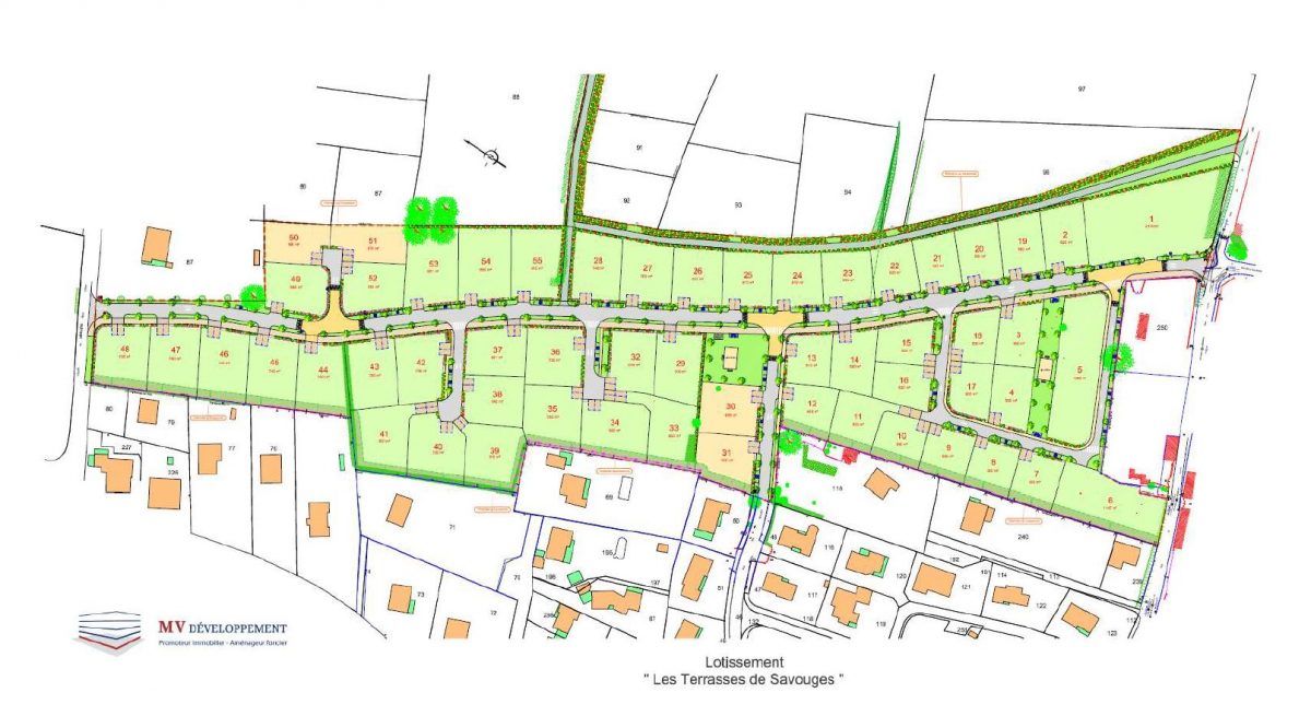
Et c’est à Communay que notre partenaire foncier aménage un magnifique lotissement : « Les Terrasses de Savouges ».
La Construction Lyonnaise travaille en collaboration avec le lotisseur et vous propose d’étudier votre projet de construction sur l’un des nombreux terrains disponibles.
Projet de maison – lot 3

La Construction Lyonnaise vous propose par exemple ce 1er projet de construction.
Sur le lot 3 du lotissement de Communay, d’une surface de 558m² entièrement viabilisé, nous construirons pour vous une maison de 97m² habitables. Elle sera composée de 3 chambres à l’étage, une cuisine ouverte sur séjour et d’un garage de 32m².
Cette maison offre des prestations de qualité tels que volets roulants électriques à commande centralisée, chauffage par pompe à chaleur..
Conforme RE2020.

Prix du terrain : 170 000€ (non compris frais de notaire).
Prix de la maison : 220 000€ (compris assurance DO ; non compris VRD, peintures intérieures et parquets dans les chambres, taxes aménagement et PFAC, placards).
Contactez-nous pour plus de renseignements.
La Construction Lyonnaise n’est pas le propriétaire du terrain.
Consultez les autres projets en cours pour vous inspirer et commencer à réfléchir à VOTRE maison.
